 |
| Überdachung eines Marktes auf L-förmigem Grundriß. |
 |
| Eine textile Membran folgt als Minimalfläche an den Längsseiten verteilten Hoch- und Tiefpunkten, ein sog. Wellenzelt, erhält dadurch Vorspannung und Festigkeit. |
 |
| |
 |
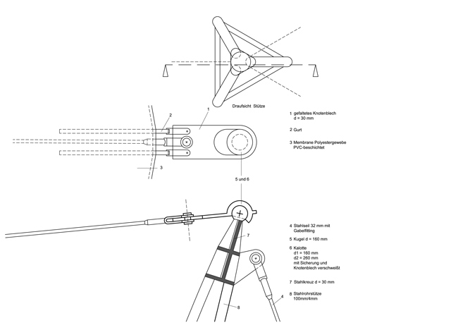
| Ausbildung der Zeltstütze an allen Knotenpunkten gelenkig, Stütze in Stahlfachwerk aufgelöstes Volumen, der Querschnitt folgt der auftretenden Biegespannung. |
 |
| Stoß der beiden Hauptdachflächen. |
 |
| |
 |
| Transportable Halle für Entwicklungshilfegüter konzipiert für die Wüstenregionen Malis. |
 |
| Aufbausequenz. Kunststofftragwerk auf zwei Schienen. Eine Schiene wird fixiert. Per Winde wird die andere Schiene hergezogen. Das Tragwerk erhebt sich und erhält seine Vorspannung. |
 |
| Detail. Verschattung, Klimahülle |
 |
| Innenraum |
| |